



CHÍNH CHỦ CHO THUÊ TOÀ NHÀ MẶT PHỐ CẦU DIỄN - NGUYÊN XÁ. 7 TẦNG, 1 HẦM
Đường Cầu Diễn, Phường Tây Tựu, Quận Bắc Từ Liêm, Quận Bắc Từ Liêm, Hà Nội
Mô Tả Chi Tiết
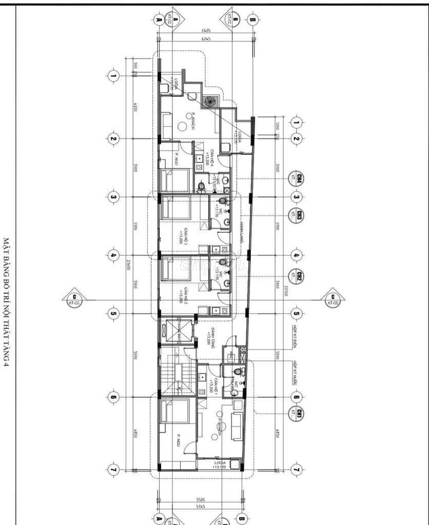
Dự án: Thông tin chi tiết: SIÊU PHẨM MẶT PHỐ LỚN – TOÀ NHÀ 7 TẦNG ĐA NĂNG, VỊ TRÍ ĐẮC ĐỊA NGAY ĐẠI HỌC CÔNG NGHIỆP! 🌟 Thông tin chi tiết: • Địa chỉ: Mặt đường Cầu Diễn (Tuyến đường huyết mạch), Khu Nguyên Xá, Tây Tựu. • Tổng diện tích sử dụng: 1100m² (Thiết kế thông minh, tối ưu không gian). • Số tầng: 7 tầng nổi + 1 tầng hầm rộng rãi (Tổng 8 tầng), mặt tiền 8m. • Diện tích sàn: 150m²/sàn. • Thiết kế & Công năng: • 1 Tầng hầm: Chỗ để xe rộng rãi cho nhân viên và khách hàng. • 3 Tầng đầu thông sàn: Phù hợp làm showroom, sảnh đón khách, văn phòng làm việc tập trung (co-working), trung tâm đào tạo, gym, spa... • 3 Tầng tiếp theo: Thiết kế mô hình Văn phòng - Căn hộ. Bao gồm 9 phòng khép kín, FULL NỘI THẤT CAO CẤP (Sẵn giường, tủ, bàn ghế, điều hòa...). Thích hợp làm căn hộ dịch vụ cao cấp, văn phòng làm việc riêng biệt. 💎 Vị trí "Vàng" - Tiềm năng kinh doanh cực lớn: • Mặt tiền đường lớn Cầu Diễn, giao thông sầm uất, nhận diện thương hiệu cực tốt. • Chỉ cách Đại học Công nghiệp Hà Nội 200m: Nguồn khách hàng tiềm năng là sinh viên, giảng viên lớn. • Cách Ga tàu điện trên cao 200m: Thuận tiện di chuyển vào trung tâm thành phố và các khu vực lân cận. • Xung quanh tiện ích đầy đủ: Ngân hàng, nhà hàng, siêu thị, chợ... 💰 Giá thuê hấp dẫn: 160 triệu/tháng (Ưu tiên thuê cả nhà dài hạn). 📞 LIÊN HỆ CHÍNH CHỦ ĐỂ XEM NHÀ & THƯƠNG LƯỢNG: 🗣 Mr Thịnh - Điện thoại/Zalo: *** (Cam kết
Tiện Ích Nội Khu
Vị Trí Trên Bản Đồ
Chưa có tọa độ bản đồ
Đường Cầu Diễn, Phường Tây Tựu, Quận Bắc Từ Liêm, Hà Nội
TitanHome
Chuyên viên tư vấn cao cấp


